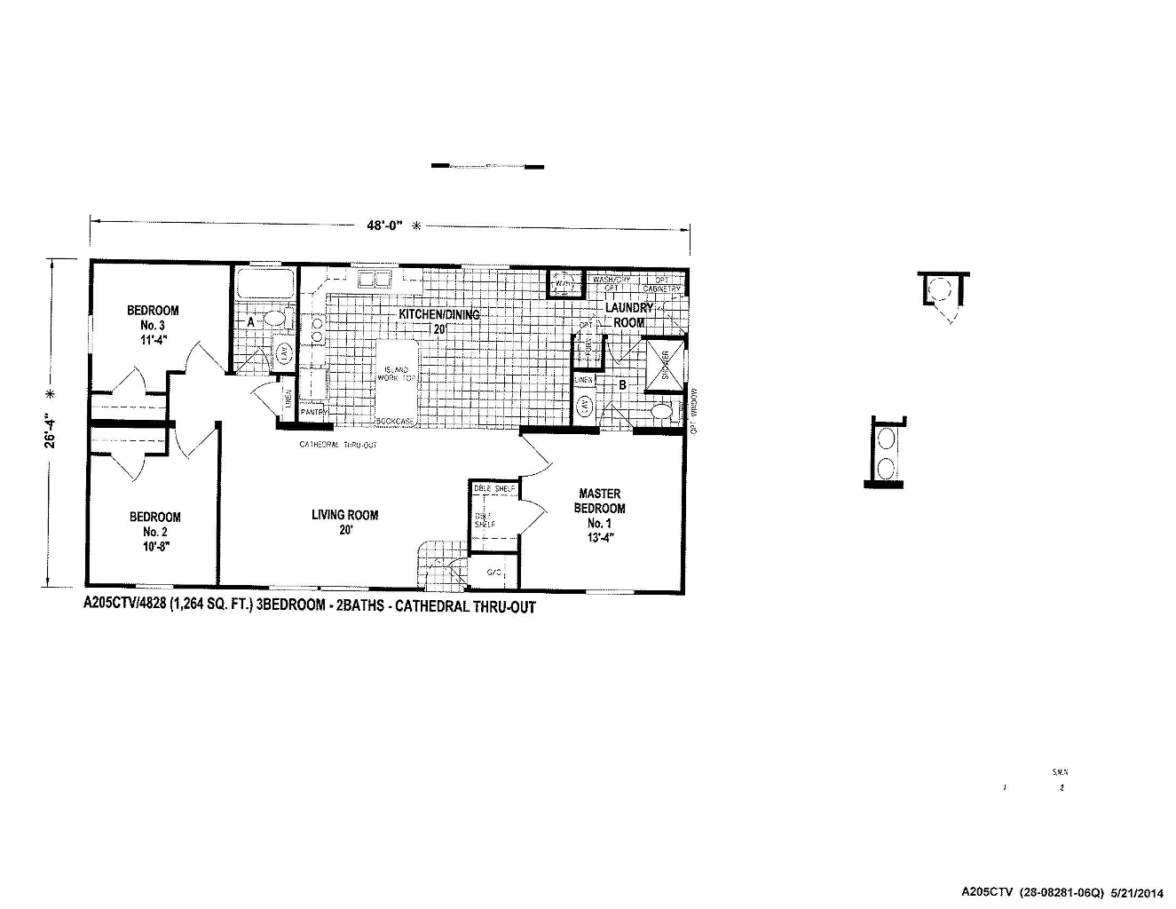
Gallery The Meadow Ridge Skyline A234 14 Photos Skyline A280 21 Photos Skyline A215 22 Photos Floor Plans Clicking on the photo/floorplan will open a new window in PDF format. [pointelleslider id=’7′]